Do you have a property to sell? Contact Us

Church Farm, Stoke Goldington, Newport Pagnell, MK16 8NZ

Guide Price £10,750,000
Tenure Freehold
5 Bedrooms

An opportunity to acquire an attractive commercial and amenity farm in a highly desirable part of North Buckinghamshire.

  • Description

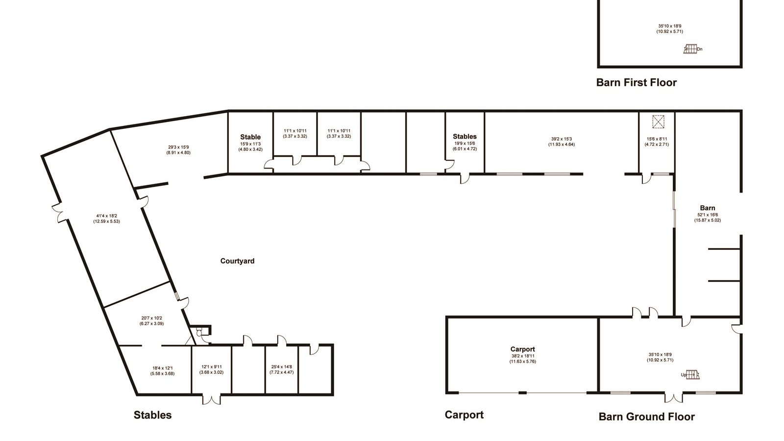
    An opportunity to acquire an attractive commercial and amenity farm in a highly desirable part of North Buckinghamshire. Church Farm is located on the edge of the sought-after village of Stoke Goldington, close to Newport Pagnell, Milton Keynes, Bedford and Northampton. Church Farm comprises a listed farmhouse, modern and traditional buildings, arable land, pasture land and woodland. Church Farmhouse is a Grade ll Listed property, formerly a Manor House. The east wing dates back to the 16th Century with newer additions in the 17th and 18th Century. The farmhouse is constructed of Coursed Rubblestone and has many original features. On the ground floor is a large kitchen, dining room with exposed beams, living room and drawing rooms, both with fireplaces and an adjoining annexe with a bedroom, living room and bathroom. On the first floor are five bedrooms (one en suite) and a family bathroom. The second-floor attic offers potential for further accommodation (subject to planning and Listed Building Consents). The farmhouse provides accommodation, extending to 4,732 sq ft (439.61 sq m) including the cellar and attic). with scope to extend (subject to planning). The property is set in mature gardens and has wonderful views over the surrounding countryside. The farmyard comprises both modern grain storage and traditional buildings extending to 52,196 sq ft. The traditional buildings are mainly set in a courtyard and offer development opportunities (subject to planning). The modern buildings offer 5,000 tonnes crop storage and general purpose buildings. The farmland is classified as Grade 2 and Grade 3 on the DEFRA published Agricultural Land Classification of England and Wales and is predominantly of the Hanslope series. The arable land extends to 661.59 acres and the permanent pasture land extends to 75.59 acres. Stoke Park Wood, 158.49 acres of mixed woodland, lies on the western side of Church Farm and is a haven for wildlife and plants. Harley Field Barn offers an opportunity to purchase a stone barn, set in half an acre, with potential for conversion (subject to planning). In all approximately 906.17 (366.721 hectares) for sale as a whole or in 9 Lots: Lot 1: Church Farmhouse and pasture land. 18.79 acres (7.604 hectares) Lot 2: Traditional buildings. 0.31 acre (0.127 hectare) Lot 3: Yard, modern farm building and arable land. 244.91 acres (99.114 hectares) Lot 4: Stoke Park Wood. 158.49 acres (64.138 hectares) Lot 5: Arable land 304.12 acres (123.076 hectares) Lot 6: Pasture land 57.43 acres (23.240 hectares) Lot 7: Arable land 59.58 acres (24.110 hectares) Lot 8: Arable land 62.04 acres (25.108 hectares) Lot 9: Harley Field Barn 0.50 acre (0.202 hectare)

Take a look around

Church Farm, Stoke Goldington

Arrange a viewing for this property

Get in touch

Arrange a viewing for this property Close icon

Thank you, one of our agents will be in touch to arrange a viewing for this property.

Preferred time to view
Preferred days to view
An error has occurred while getting captcha image

T&C's

By submitting your information, your details will be added to our property marketing database. You can amend this at any time by visiting our Preference Centre.

07918 561606
matthew.alexander@bidwells.co.uk

Location

Train Stations:

  • Stonebridge

    7.90km

  • Cogenhoe

    11.00km

  • Central Milton Keynes

    11.29km

  • Northampton

    13.37km

Property Advisor

300324

Matthew Alexander

Partner, Rural

An approachable, yet driven rural agent, Matthew provides well-researched and in-depth advice to his clients on the purchase and sale of rural and agricultural property.

Read more

Search Bidwells

Arrange a viewing for this property

Thank you, one of our agents will be in touch to arrange a viewing for this property.

Preferred time to view
Preferred days to view
An error has occurred while getting captcha image

T&C's

By submitting your information, your details will be added to our property marketing database. You can amend this at any time by visiting our Preference Centre.

Close icon