Development Opportunity, Campbeltown Road, Tarbert, PA29 6YF
Offers Over
£300,000
Tenure
Absolute Ownership (Freehold)
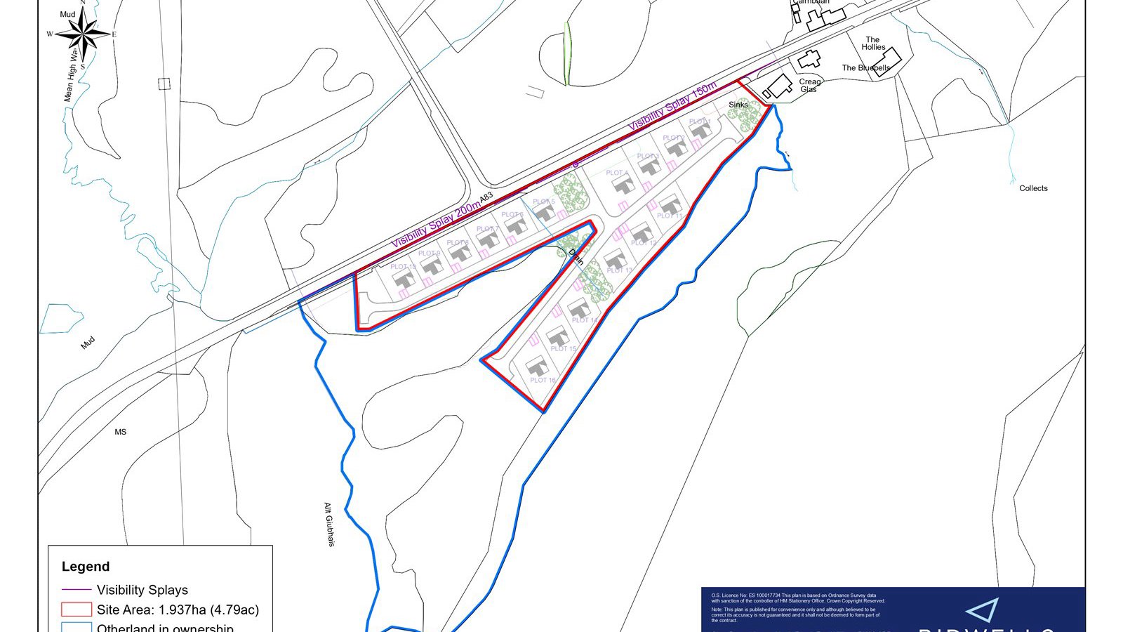
An excellent residential development opportunity with Planning Permission in Principle for 16 units on the outskirts of the picturesque village of Tarbert.
-
Description
Development Opportunity
Campbeltown Road, Tarbert, PA29 6YF
Offers Over £300,000
An excellent residential development opportunity with Planning Permission in Principle for 16 units on the outskirts of the picturesque village of Tarbert.
• The Property extends to approximately 5.02 Hectares (12.40 acres)
• Enviable location overlooking West Loch Tarbert
• Sought after and highly desirable rural location
• Benefitting from pockets of ancient woodland and open grassland
• Information Pack available
LOCATION
The Property sits on the outskirts of the village of Tarbert on Loch Fyne - known as the gateway
to the peninsula of Kintyre – and in walking distance (approx. 18 mins) to a good selection of independent shops including gift shops, newsagents, grocers, cafes, restaurants public houses, post office, bank, medical centre, numerous hotels and Guesthouses as well as a village hall and gallery.
Tarbert Academy provides education for the village and surrounding areas for children aged 3-18. Various highly regarded independent schools are available within the wider area including Lomond School, Helensburgh and St Columba's, Kilmacolm. The village of Tarbert is well known for its attractive natural harbour which is still home to a small working fishing fleet and is an increasingly popular destination for the yachting fraternity.
A greater range of amenities can be found further north in Lochgilphead, the administrative centre for the Argyll and Bute region. Which provides a sports centre, library, supermarkets, veterinary practice, banks and a regional hospital with Accident & Emergency services.
Connections to all mainland destinations can be made by bus. The closest airport, with scheduled domestic flights, is Campbeltown Airport, Machrihanish with direct flights to Glasgow Airport. International flights are available from Glasgow and Edinburgh airports, both of which can ordinarily be reached in two-and-a-half hours and three-and-a-half hours respectively.
VIEWING
Strictly by prior agreement with the selling agents who should be contacted in advance to advise on access arrangements.
OFFERS
Offers in Scottish Legal Form should be submitted to the Selling Agents at their Perth office. Parties are asked to satisfy themselves that they fully understand the implication of offering under Scottish Law. The sellers reserve the right not to accept any offer.
FINANCIAL GUARANTEE/ANIT-MONEY LANDERING REGULATIONS
Any offer by prospective purchaser(s), regardless of where they are ordinarily resident and regardless whether on a cash or subject to loan finance basis, must be accompanied by a financial reference from a bank/funding source that is acceptable to the sellers. Prospective purchasers will also be required to produce identification sufficient to satisfy anti money laundering regulations and checks against the intended purchaser or nominee together with other documentation that may be required, from time to time, in order to support any conditional offers submitted to the seller. Bidwells LLP accepts no liability of any type arising from your delay or other lack of co-operation in this regard. Failure to provide the requisite AML documentation with offers may result in them not being considered at the closing date or being superseded by an offer which is. Settlement may also be delayed or aborted due to non-compliance with requests for information or failure to deliver adequate information within the requisite timeframes. We may hold your name on our database unless you instruct us otherwise.
Train Stations:
-
Tighnabruaich
13.54km
-
Wemyss Bay
33.88km
-
Inverkip
35.28km
-
Largs
35.94km