Do you have a property to sell? Contact Us

Fitzwilliam Road, Cambridge, Cambridgeshire, CB2 8BN

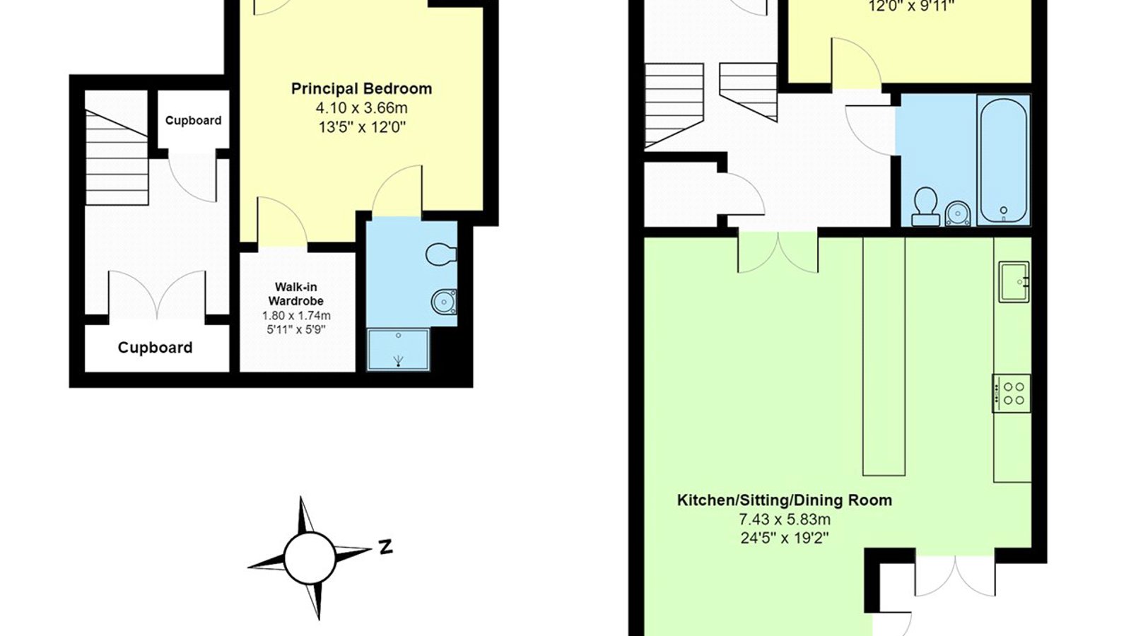
Guide Price £550,000
Tenure Leasehold
2 Bedrooms
2 Bathrooms
1 Reception

A superb two-bedroom duplex apartment with parking space, situated in the highly regarded Kaleidoscope development on the south side of the city.

  • Property specification

    • Audio entry system
    • Kitchen/Dining/Sitting Room with 2 sets of French doors leading to a private Garden
    • Kitchen Area with range of wall and base cabinets, stone worktop and integrated appliances
    • Principal Bedroom with En Suite Shower Room , Walk-in Wardrobe and door to Patio
    • Gas fired under floor central heating
    • Allocated parking space
    • No onward chain
  • Description

    A superb two-bedroom duplex apartment with parking space, situated in the highly regarded Kaleidoscope development on the south side of the city. Cambridge City Centre 1 mile, Mainline Railway Station 0.5 of a mile, M11 (Junction 11) 2.5 miles (distances are approximate) 32 Fitzwilliam Road was built in 2009 by Crest Nicholson and was formerly the show home for the development. The stylish, and contemporary accommodation, arranged over two floor, is immaculately presented with deep glazed windows providing a light and airy feel throughout.

07776 769339
ollie.rivers@bidwells.co.uk

Location

Train Stations:

  • Cambridge (Cambridge Railway Station)

    0.56km

  • Cambridge (Cambridge North)

    4.20km

  • Great Shelford

    4.60km

  • Waterbeach

    9.19km

Property Advisor

602797

Ollie Rivers

Partner, Residential Sales

Ollie’s passion for Cambridge, and residential sales, is obvious from the first time you meet him.

Read more

Search Bidwells